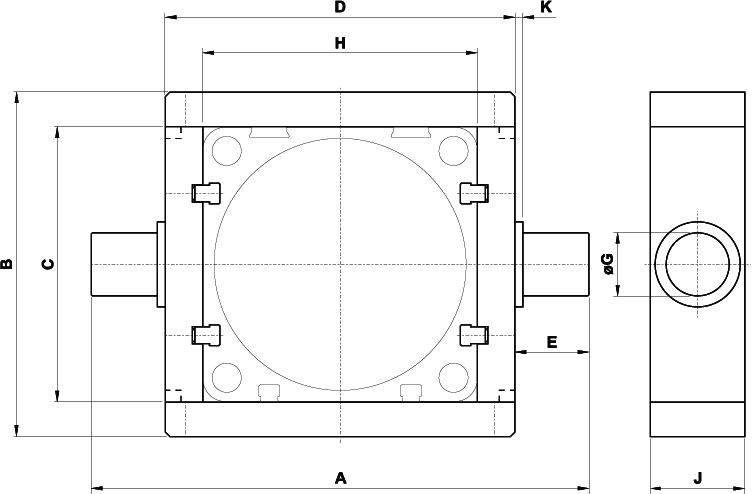
Cerniera intermedia per estruso - SOLO PER SERIE "N" 
BORES 32, 40, 50


| part number | for bore | A | B | C | D | E | G | H | J | K |
| CIN032 | 32 | 87 | 65 | 44.5 | 52 | 17.5 | 12 | 45 | 25 | 2 |
| CIN040 | 40 | 105 | 74.8 | 50.5 | 62 | 21.5 | 16 | 51 | 25 | 2.5 |
| CIN050 | 50 | 117 | 90.3 | 60.3 | 74 | 21.5 | 16 | 60.8 | 25 | 2.5 |
| CIN063 | 63 | 136 | 94.5 | 70.5 | 91 | 22.5 | 20 | 70 | 30 | 2.5 |
| CIN080 | 80 | 156 | 109.3 | 87.5 | 111 | 22.5 | 20 | 87 | 30 | 2.5 |
| CIN100 | 100 | 195 | 134 | 106.6 | 129 | 33 | 25 | 106 | 40 | 2.5 |
| CIN125 | 125 | 223 | 160 | 132.6 | 157 | 33 | 25 | 132 | 40 | 2.5 |
| model |
AUTOCAD ver 14. DWG |
JPG |
ACIS - SAT |
STEP |
|
CIN032 |
|
|
||
| CIN040 |
|
|
||
| CIN050 |
|
|
||
| CIN063 |
|
|
||
| CIN080 |
|
|
||
| CIN100 |
|
|
||
| CIN125 |
|
|

Questa cerniera intermedia può essere montata solo su cilindri a tubo tondo con tiranti. Al momento dell'ordine dei cilindri specificare chiaramente questa caratteristica, fornendo anche precise indicazioni riguardo alla posizione di montaggio della cerniera sul cilindro.
This fixing element can be mounted only on a cylinder with round barrel and tie-rods. The request for cylinders with tie-rods must be clearly specified on the order. On the order please specify also the position where the fixing element should be mounted on the cylinder.
| part number | for bore | A | B | C | D | E | G | H | J | L |
| CSIS160TI | 160 | 200 | 32 | ø170 | 140 | M16 | ø32 | 190 | 40 | 190 |
| CSIS200TI | 200 | 250 | 32 | ø211 | 175 | M16 | ø32 | 240 | 40 | 240 |
| model |
AUTOCAD ver 14. DWG |
JPG |
ACIS - SAT |
STEP |
| CSIS160TI |
|
|
||
| CSIS200TI |
|
|

Questa cerniera intermedia può essere montata solo su cilindri a tubo tondo con tiranti.
ATTENZIONE: La cerniera intermedia regolabile, anche se ben fissata sul cilindro, a motivo del carico può scivolare e causare spiacevoli inconvenienti. Per evitare tutto ciò si consiglia di usare una cerniera intermedia fissa!
This fixing element can be mounted only on a cylinder with round barrel and tie-rods. ATTENTION: This adjustable intermediate trunnion, even if it is correctly mounted on the cylinder, because of the weight can move and cause very serious injury. To avoid this danger it is better to use a fixed intermediate trunnion!
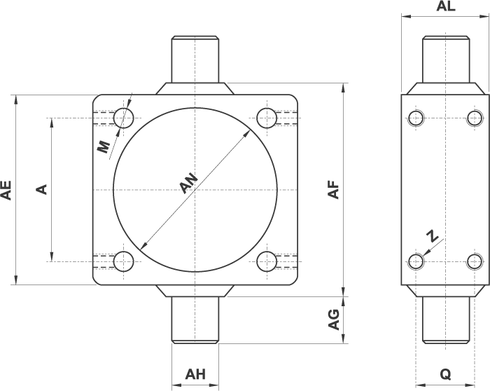
| part number | for bore | A | AE | AL | AH | AG | AF | AN | M | Q | Z |
| 26.327.2N | 160 | 140 | 190 | 40 | ø32 | 32 | 200 | ø171 | ø16.25 | 18 | M12 |
| 26.328.2N | 200 | 175 | 240 | 40 | ø32 | 32 | 250 | ø211 | ø16.25 | 18 | M12 |